VEGA

VEGA

Dom parterowy ETAPOWY o powierzchni użytkowej 90,44 m2

VEGA dom prefabrykowany projekt

Rzuty

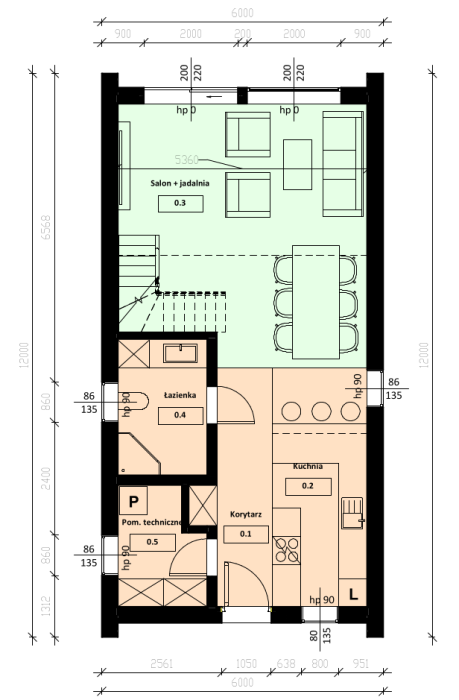
Vega parter
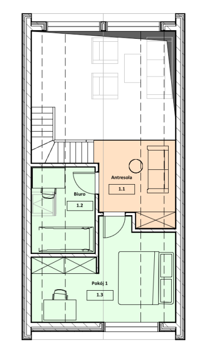
Vega antresola

POD­STA­WOWE PARA­ME­TRY BUDYNKU:

  • Powierzch­nia użytkowa: 90,44 m2
  • Powierzch­nia zabu­dowy: 109,49 m2
  • Wysokość budynku: 5,31 m
  • Wymi­ary budynku: 14,64 m x 8,96 m

Zapy­taj o szczegóły