PROXI 35

PROXI 35

Dom o powierzchni użytkowej 39,43
slide

Rzuty

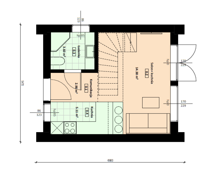
PROXI 35 rzut
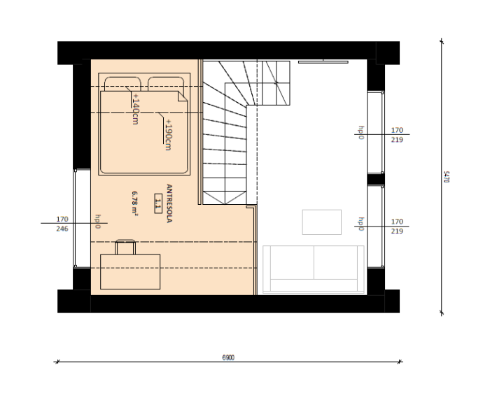
PROXI 35 rzut

Para­me­try podstawowe

  • Powierzch­nia użytkowa: 39,43
  • Powierzch­nia po podłodze: 44,00
  • Powierzch­nia zabu­dowy: 34,95
  • Wysokość: 6,55 m
  • Wymi­ary: 6,90 m x 5,47 m

Ściany

Tech­nolo­gia

Wszys­tkie nasze domy wyko­nane są w tech­nologii pre­fab­rykowanej, ustaw­iane na wyle­wanej pły­cie fundamentowej.

Wszys­tkie mate­ri­ały pochodzą od jed­nego producenta.

Zin­te­growana pompa ciepła oraz este­ty­czny, wyda­jny dach fotowoltaiczny.

Szy­bki mon­taż – maksy­mal­nie w ciągu kilku dni.

Rabaty

W przy­padku zamówienia kilku domów PROXI 35 – atrak­cyjne rabaty.

Zobacz też: dofi­nan­sowanie dla branży HORECA