Przejdź do menu
Przejdź do treści
Szybkie menu
Używamy cookies
Wyszukiwarka
Menu główne
Zwiń/Rozwiń menu
Wyszukiwarka
Strona główna
O nas
Oferta
Katalog projektów
POLARIS
PROXI 35
SOLE 100
SOLE 100 z poddaszem
SOLE 55
SOLE 70
SOLE 70 z antresolą
SOLE 85
SOLE 85 z poddaszem
SOLE 94
Bliżniak CASTOR
VEGA
PROXI 70
Nowy Beskid
CASTOR SOLO
Technologia
Ściana zewnętrzna
Elewacja
Pompa ciepła
Dach fotowoltaiczny
Po stronie inwestora
Partnerzy
FAQ
Galeria
Newsy
Kontakt
Kanały informacyjne
Mapa strony
Koszyk
Koszyk
(
)
Koszyk
?
zł
Widżety
Ostatnio w galerii
Zobacz galerie
Co nowego?
Partnerzy
O nas
Dach fotowoltaiczny
Pompa ciepła
Elewacja
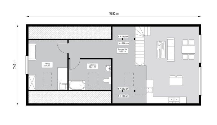
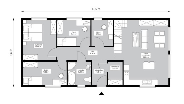
SOLE 100 z poddaszem
SOLE
100
z poddaszem
Dom parterowy + poddasze użytkowe
o łącznej powierzchni
139
,
04
m²
Rzuty
Parametry budynku
Powierzchnia użytkowa:
139
,
04
m²
Powierzchnia zabudowy:
117
,
38
m²
Wysokość:
7
,
00
m
Wymiary:
15
,
82
m ×
7
,
42
m
Zapytaj o szczegóły
Oferta
Inne projekty
Kontakt
Wykorzystujemy pliki cookies »
X